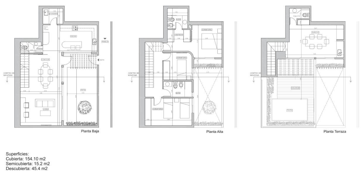
PROPIEDAD DE PASILLO COMPLETAMENTE NUEVA ,EDIFICADA DESDE SUS CIMIENTOS SE DESARROLLA EN DOS PLANTAS - CUENTA CON TERRAZA Y QUINCHO - DISEÑO MODERNO - ORGANIZACION FUNCIONAL DE LOS AMBIENTES PLANTA BAJA - PATIO DE INGRESO : al acceder a la vivienda, un amplio espacio verde recibe con luz natural y ofrece un entorno exterior acogedor, pensado para el relax y la vida al aire libre. COCINA CON ISLA: se presenta como un ambiente independiente, bien equipado y funcional, donde la isla aporta superficie adicional de trabajo. ESTAR COMEDOR AMPLIO: concebido como un espacio confortable y versátil, ideal para compartir momentos y disfrutar del descanso cotidiano. TOILLETTE - LAVADERO INDEPENDIENTE ( CON ACCESO DESDE LA COCINA) PLANTA ALTA DORMITORIO SUITE: proyectado para ofrecer comodidad y funcionalidad, garantizando un ambiente agradable y confortable, con su baño particular que asegura privacidad. -DORMITORIOS SECUNDARIOS: equipados con placares empotrados de estilo moderno y amplia capacidad de guardado, estos espacios comparten un baño completo de uso común. TERRAZA QUINCHO : amplio espacio equipado con parrilla, mesada con bacha y lugar suficiente para colocar una gran mesa, ideal para reuniones. Un ambiente pensado para disfrutar en compañía, combinando funcionalidad y confort. SOLARIUM Y PÌSCINA: este espacio invita a relajarse y disfrutar de momentos únicos en la privacidad de tu hogar. El diseño de esta terraza propone un entorno versátil y acogedor, pensado tanto para momentos de descanso como para reuniones y actividades sociales. PISOS Y REVESTIMIENTOS Pisos de Porcelanato, revestimientos y zócalos EPS de primera línea. CLIMATIZACIÓN Se prevé la pre instalación de aires acondicionados. Se prevé la instalación de calefacción con instalación de Caldera. MOBILIARIO DE COCINA Alacena y bajo mesada de diseño con iluminación en mobiliario. Mesada de Silestone o similar calidad. Bacha de acero inoxidable con grifería de primera línea. Espacio disponible para purificador y/o extractor de cocina. Horno eléctrico y anafe a gas embutido. PLACARES, DORMITORIOS Y BAÑOS Placares completos con frentes corredizos o de abrir. Diseño interior con estantes, cajones y barrales. Los baños cuentan con receptores para sus duchas, vanity completo y espejo. Sanitarios y griferías de primera marca. JARDÍN Y TERRAZA Jardín con intervención de paisajismo en Planta Baja. En la última planta, un quincho con espacio para parrilla, mesada con bacha y toilette. En el exterior se ubica una pergola, la pileta y un solárium con intervención entre canteros y verde.